Sallainen Naruska

98960 Naruska
Anne Pietilä

GSM

Y-tunnus
1445298-0

Kotisivut

Sähköposti

 

Yleiskuvaus

Naruska sijaitsee Suomen Lapissa, Sallatunturin ja Sallan kylän pohjoispuolella. Lähellä on Venäjä ja se Suomen kuuluisin paikka, Korvatunturi.

MAJOITUS
xxxxx Majoituspalvelut
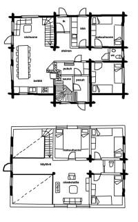
Käsinveistetyistä aihkihirrestä vuonna 2004 rakennettu 150 neliön huvila.

-Kahdessa kerroksessa 5 mh, olohuone, tupakeittiö, oleskelutiloja, sauna, kodinhoitohuone, taloa kiertävä terassi.

-Huvilassa on yöpymismahdollisuudet 12 hengelle, joista 10 erillisissä kahden hengen huoneissa.

-Pihassa autopaikat ja lämpöpistokkeet.

-Kaikissa makuuhuoneissa kaksi runkojoustinsänkyä, peitot ja tyynyt, vieraat tuovat omat lakanat.

-Varaava takka, satelliittiantenni, digi-taulu-tv, stereot.

-Kodinhoitohuoneessa kaksi kuivauskaappia ja pesukone.

-Talon vedet tulevat suihkuun ja keittiöön suoraan lähteestä.

-Nykyaikainen keittiö 18 hengen astiastolla.

Kysy myös mahdollisuutta iglusaunaan!

Lisätietoja saat soittamalla
Anne Metsovirta p. 040-5262736

Katso myös yrityksemme nettisivut.

TERVETULOA!

Kuvat